طراحی آپارتمان مسکونی 6 طبقه دو واحدی | نما کلاسیک

4
بازدید: 34083 نفر
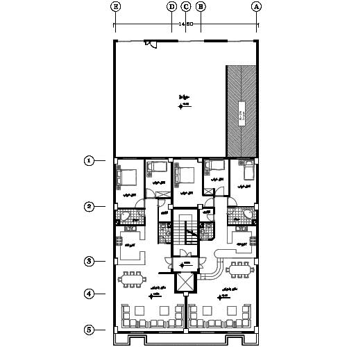
جزئیات پلان
  • تعداد طبقات تعداد طبقات : 6
  • عرض بنا عرض بنا : 14.80
  • مساحت مفید طبقه مساحت مفید طبقه : 266.40
  • تعداد واحد هر طبقه تعداد واحد هر طبقه : 2
  • روف گاردن روف گاردن : دارد
  • طراحی در شیب طراحی در شیب : نمی باشد
  • استخر استخر : ندارد
  • متراژ واحد اول متراژ واحد اول : 130.6
  • متراژ واحد دوم متراژ واحد دوم : 116
  • متراژ پیلوت متراژ پیلوت : 266.4
  • پیلوت پیلوت : دارد
  • زیر زمین زیر زمین : دارد
  • متراژ زیرزمین متراژ زیرزمین : 297.4
  • پارکینگ پارکینگ : دارد
  • اتاق بازی اتاق بازی : ندارد
  • آسانسور آسانسور : دارد
توضیحات پلان

طراحی آپارتمان 6 طبقه با نمای کلاسیک مجلل که ابزارهای به کار رفته در نما، ابهت و شکوه خاصی به ساختمان بخشیده است. در مرکز و تاج ساختمان از سنتوری استفاده شده تا وقار بیشتری ایجاد شود و قوس‌های متنوع در نما از سادگی بیش از حد جلوگیری کرده‌اند. صراحی‌ها به جلوه بیشتر نما کمک کرده و دو ورودی از دو طرف نما دسترسی آسان به ساختمان را فراهم می‌کنند.

 

این آپارتمان کلاسیک شامل زیرزمین، پیلوت و تیپ طبقات است. دسترسی به هر طبقه از طریق پله و آسانسور ممکن است. طبقه زیرزمین برای پارکینگ 4 خودرو و طبقه همکف یا پیلوت برای 6 خودرو، انبارها و یک غرفه تجاری طراحی شده است. هر طبقه شامل 2 واحد است و پلان داخلی با آشپزخانه و فضای غذاخوری در بدو ورود، سرویس بهداشتی نزدیک ورودی، نشیمن و پذیرایی در نمای اصلی و فضاهای خصوصی در پشت ساختمان طراحی شده است تا نورگیری عالی و حریم خصوصی حفظ شود.

 

این طراحی آپارتمان 6 طبقه کلاسیک مجلل با نورگیری مناسب، پلان بهینه و نمای شکوهمند، تجربه زندگی شهری راحت و مجلل را برای ساکنان فراهم می‌کند.

 

جهت مشاهده پروژه‌های بیشتر به "بخش پروژه‌های اصلی" سایت مراجعه نمایید. 

مشاهده بیشتر
پروژه های مشابه

پروژه های مشابه

ارسال دیدگاه
با نوشتن دیدگاه خود، طراحان و مشتریان را راهنمایی کنید

از ارسال لینک‌های سایت‌های دیگر و ارایه‌ی اطلاعات شخصی خودتان مثل شماره تماس، ایمیل و آی‌دی شبکه‌های اجتماعی پرهیز کنید .

فارسی بنویسید و از کیبورد فارسی استفاده کنید.

دیدگاه کاربران
  • کرمانی 1404/08/06-12:34:04

    استفاده از نمای کلاسیک مجلل با ابزارهای حجمی چه تاثیری بر هزینه ساخت و نگهداری ساختمان دارد؟

    پاسخ
    استفاده از نمای کلاسیک مجلل با ابزارهای حجمی نیاز به متریال‌های با دقت بالا و اجرای فنی تخصصی دارد که هزینه ساخت را افزایش می‌دهد و نگهداری طولانی‌مدت نیز هزینه‌بر است، زیرا تمیزکاری، تعمیر و ترمیم جزئیات حجمی زمان‌بر و حساس است.
دستاوردهای ما
تعداد بازدید ها 1,167,575+ تعداد بازدید ها
تعداد پروژه‌های انجام شده 436+ تعداد پروژه‌های انجام شده
شهرهای تحت پوشش 800+ شهرهای تحت پوشش
فالوئرهای اینستا 10.7K+ فالوئرهای اینستا
تجربه مشتریان ما
تجربه مشتریان ما
جناب آقای مسگر
جناب آقای مسگر

It was a great pleasure working with Mohandes Arjmand and his talented team. They are exceptionally professional and truly dedicated to ensuring my satisfaction and comfort every step of the way. In today’s challenging business environment, maintaining integrity is rare — yet it was inspiring to see how much they value their reputation and their clients’ trust. It’s clear to me that this team has a very bright future ahead, and I’m confident their success will continue with this admirable approach and commitment to excellence. I gave 5 stars! frankly, I could give 10 stars or maybe more! BTW, I wrote a google review too. That I can see it is there

  • امور مالی و اداری
    5
  • اخلاق حرفه ای
    5
  • کیفیت طرح نهایی
    5
  • معرفی به دوستان
    5
  • مدیریت زمان
    5
جناب آقای آلا
جناب آقای آلا

بسیار خوش برخورد و حرفه ایی

  • امور مالی و اداری
    5
  • اخلاق حرفه ای
    5
  • کیفیت طرح نهایی
    5
  • معرفی به دوستان
    3
  • مدیریت زمان
    5
جناب آقای داوری
جناب آقای داوری

تیم نماپلان با طراحی‌های دقیق و خلاقانه، به ارتقای کیفی و ارزشی پروژه‌های ساختمانی کارفرمایان کمک شایانی می‌کند.

  • امور مالی و اداری
    5
  • اخلاق حرفه ای
    5
  • کیفیت طرح نهایی
    5
  • معرفی به دوستان
    5
  • مدیریت زمان
    5
جناب آقای داوری
جناب آقای داوری

تیم نماپلان، تیم ماهر و خوبی که باعث ارزش افزوده به ساخت و بنای کارفرما میشود.

  • امور مالی و اداری
    5
  • اخلاق حرفه ای
    5
  • کیفیت طرح نهایی
    5
  • معرفی به دوستان
    5
  • مدیریت زمان
    5
سرکار خانم مقیمی
سرکار خانم مقیمی

  • امور مالی و اداری
    5
  • اخلاق حرفه ای
    5
  • کیفیت طرح نهایی
    4
  • معرفی به دوستان
    4
  • مدیریت زمان
    4
جناب آقای فزونی
جناب آقای فزونی

  • امور مالی و اداری
    5
  • اخلاق حرفه ای
    5
  • کیفیت طرح نهایی
    5
  • معرفی به دوستان
    5
  • مدیریت زمان
    5
جناب آقایی
جناب آقایی

  • امور مالی و اداری
    5
  • اخلاق حرفه ای
    5
  • کیفیت طرح نهایی
    5
  • معرفی به دوستان
    5
  • مدیریت زمان
    5
جناب آقای ایمن پور
جناب آقای ایمن پور

بابت زحمات و توجه جناب آقای بخشیان و پیگیریهایی که ایشان بعضاً حتی خارج از توافقات داشتند کمال تشکر را دارم.

  • امور مالی و اداری
    1
  • اخلاق حرفه ای
    5
  • کیفیت طرح نهایی
    5
  • معرفی به دوستان
    5
  • مدیریت زمان
    5
جناب آقای قاسمی نژاد
جناب آقای قاسمی نژاد

  • امور مالی و اداری
    5
  • اخلاق حرفه ای
    5
  • کیفیت طرح نهایی
    5
  • معرفی به دوستان
    5
  • مدیریت زمان
    5
جناب مهندس انصاری
جناب مهندس انصاری

با درود و احترام خدمت شما دوستان در مجموعه نما پلان. بنده به میزان ۹۰ درصد از عملکرد مجموعه رضایت دارم فقط چند مورد و آن هم عدم معرفی متریال نما، بود. بقیه موارد عالی

  • امور مالی و اداری
    5
  • اخلاق حرفه ای
    5
  • کیفیت طرح نهایی
    4
  • معرفی به دوستان
    5
  • مدیریت زمان
    5
مجله نماپلان
Namaplan MAG

مجله نماپلان

MAG
مشاهده مطالب     ›
instagram اینستاگرام @Namaplan
NamaPlan