طراحی ویلای دوبلکس مدرن با سقف شیبدار (380 مترمربع)

5
بازدید: 14911 نفر
جزئیات پلان
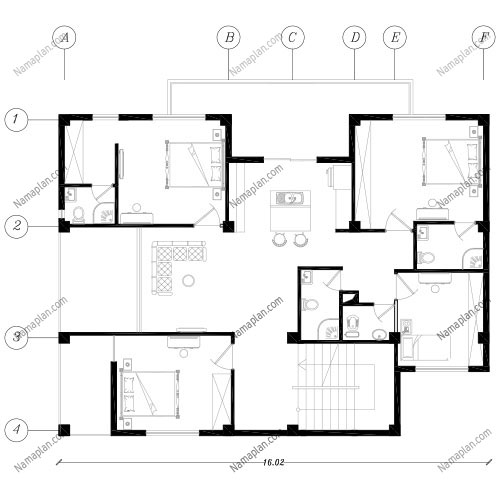
  • تعداد طبقات تعداد طبقات : دوبلکس
  • متراژ کل متراژ کل : 384
  • عرض بنا عرض بنا : 16.02
  • تعداد خواب تعداد خواب : 5
  • روف گاردن روف گاردن : ندارد
  • طراحی در شیب طراحی در شیب : نمی باشد
  • استخر استخر : ندارد
  • متراژ واحد اول متراژ طبقه اول 189
  • متراژ واحد دوم متراژ طبقه دوم 184
  • پیلوت پیلوت : ندارد
  • زیر زمین زیر زمین :
  • متراژ زیرزمین متراژ زیرزمین : 0
  • پارکینگ پارکینگ : ندارد
  • اتاق بازی اتاق بازی : ندارد
  • آسانسور آسانسور : ندارد
توضیحات پلان

پلان ویلای دوبلکس ۳۸۴ متری نمونه‌ای از یک ویلای مدرن با سقف شیبدار است که ترکیب متریال‌های چوب، آجر و شیشه در آن جلوه‌ای گرم و چشم‌نواز به وجود آورده است. این نقشه ویلای مدرن دوبلکس با هدف تلفیق زیبایی معماری معاصر و حس سنتی طراحی سقف‌های شیبدار طراحی شده تا فضایی دل‌نشین و هماهنگ با طبیعت شمال ایران ایجاد کند. استفاده از شیشه در جان‌پناه تراس‌ها، تضاد سقف تیره با بدنه آجری و چوبی، و همچنین باکس‌های گل در نما باعث شده این ویلای دوبلکس شمال ظاهری زنده و طبیعی داشته باشد.

 

در طراحی داخلی این ویلای دوبلکس مدرن، فضاهای عمومی و خصوصی به‌خوبی از یکدیگر تفکیک شده‌اند. طبقه همکف شامل نشیمن بزرگ، پذیرایی دلباز و ناهارخوری جادار است که با پنجره‌های بزرگ نور طبیعی را به تمام فضاها می‌رساند. آشپزخانه در مرکز پلان ویلای دوبلکس ۳۸۴ متری قرار گرفته و با مطبخ و تراس اختصاصی طراحی شده تا دسترسی آسان به تمام قسمت‌ها داشته باشد. همچنین یک اتاق مهمان با سرویس بهداشتی و حمام خصوصی در این طبقه وجود دارد تا راحتی مهمانان تأمین شود. اختلاف سطح بین نشیمن خصوصی و عمومی باعث پویایی و جذابیت بیشتر در طراحی داخلی شده است.

 

در طبقه دوم این ویلای مدرن با سقف شیبدار، چهار اتاق خواب طراحی شده که دو تای آن‌ها مستر هستند. علاوه بر آن، یک نشیمن خانوادگی دنج با تراس بزرگ و یک آشپزخانه مجزا در این طبقه قرار دارد. دو تراس وسیع در دو ضلع ویلا طراحی شده تا ارتباطی مستقیم با فضای بیرونی و مناظر اطراف برقرار شود.

 

طراحی نمای ویلای مدرن دوبلکس با بهره‌گیری از رنگ‌های متضاد، چوب طبیعی و آجر روشن، باعث شده فرم کلی ویلا ساده و در عین حال لوکس به نظر برسد. استفاده از سقف شیبدار تیره در کنار خطوط افقی و عمودی ظریف، جلوه‌ای خاص و امروزی به ساختمان داده است. این نوع پلان ویلای چوبی و آجری علاوه بر زیبایی بصری، از نظر عملکردی نیز کاملاً کاربردی است و برای خانواده‌های پرجمعیت یا افرادی که مهمانی‌های متعددی دارند انتخابی عالی به شمار می‌آید.

 

پلان ویلای دوبلکس ۳۸۴ متری نمونه‌ای کامل از طراحی ویلای دوبلکس است که سادگی، تعادل، نور طبیعی و هماهنگی با طبیعت را در کنار هم دارد. این ویلای مدرن با سقف شیبدار نه تنها حس آرامش و گرما را منتقل می‌کند بلکه به‌عنوان یک ویلای دوبلکس شمال با معماری خاص و متریال‌های باکیفیت، می‌تواند الهام‌بخش طراحی‌های آینده باشد.

 

 

مشاهده بیشتر
پروژه های مشابه

پروژه های مشابه

ارسال دیدگاه
با نوشتن دیدگاه خود، طراحان و مشتریان را راهنمایی کنید

از ارسال لینک‌های سایت‌های دیگر و ارایه‌ی اطلاعات شخصی خودتان مثل شماره تماس، ایمیل و آی‌دی شبکه‌های اجتماعی پرهیز کنید .

فارسی بنویسید و از کیبورد فارسی استفاده کنید.

دیدگاه کاربران
  • تینا 1404/08/05-15:45:33

    عاشق این سبک معماری‌ام :)))))

    پاسخ
دستاوردهای ما
تعداد بازدید ها 1,160,918+ تعداد بازدید ها
تعداد پروژه‌های انجام شده 433+ تعداد پروژه‌های انجام شده
شهرهای تحت پوشش 800+ شهرهای تحت پوشش
فالوئرهای اینستا 10.7K+ فالوئرهای اینستا
تجربه مشتریان ما
تجربه مشتریان ما
جناب آقای مسگر
جناب آقای مسگر

It was a great pleasure working with Mohandes Arjmand and his talented team. They are exceptionally professional and truly dedicated to ensuring my satisfaction and comfort every step of the way. In today’s challenging business environment, maintaining integrity is rare — yet it was inspiring to see how much they value their reputation and their clients’ trust. It’s clear to me that this team has a very bright future ahead, and I’m confident their success will continue with this admirable approach and commitment to excellence. I gave 5 stars! frankly, I could give 10 stars or maybe more! BTW, I wrote a google review too. That I can see it is there

  • امور مالی و اداری
    5
  • اخلاق حرفه ای
    5
  • کیفیت طرح نهایی
    5
  • معرفی به دوستان
    5
  • مدیریت زمان
    5
جناب آقای آلا
جناب آقای آلا

بسیار خوش برخورد و حرفه ایی

  • امور مالی و اداری
    5
  • اخلاق حرفه ای
    5
  • کیفیت طرح نهایی
    5
  • معرفی به دوستان
    3
  • مدیریت زمان
    5
جناب آقای داوری
جناب آقای داوری

تیم نماپلان با طراحی‌های دقیق و خلاقانه، به ارتقای کیفی و ارزشی پروژه‌های ساختمانی کارفرمایان کمک شایانی می‌کند.

  • امور مالی و اداری
    5
  • اخلاق حرفه ای
    5
  • کیفیت طرح نهایی
    5
  • معرفی به دوستان
    5
  • مدیریت زمان
    5
جناب آقای داوری
جناب آقای داوری

تیم نماپلان، تیم ماهر و خوبی که باعث ارزش افزوده به ساخت و بنای کارفرما میشود.

  • امور مالی و اداری
    5
  • اخلاق حرفه ای
    5
  • کیفیت طرح نهایی
    5
  • معرفی به دوستان
    5
  • مدیریت زمان
    5
سرکار خانم مقیمی
سرکار خانم مقیمی

  • امور مالی و اداری
    5
  • اخلاق حرفه ای
    5
  • کیفیت طرح نهایی
    4
  • معرفی به دوستان
    4
  • مدیریت زمان
    4
جناب آقای فزونی
جناب آقای فزونی

  • امور مالی و اداری
    5
  • اخلاق حرفه ای
    5
  • کیفیت طرح نهایی
    5
  • معرفی به دوستان
    5
  • مدیریت زمان
    5
جناب آقایی
جناب آقایی

  • امور مالی و اداری
    5
  • اخلاق حرفه ای
    5
  • کیفیت طرح نهایی
    5
  • معرفی به دوستان
    5
  • مدیریت زمان
    5
جناب آقای ایمن پور
جناب آقای ایمن پور

بابت زحمات و توجه جناب آقای بخشیان و پیگیریهایی که ایشان بعضاً حتی خارج از توافقات داشتند کمال تشکر را دارم.

  • امور مالی و اداری
    1
  • اخلاق حرفه ای
    5
  • کیفیت طرح نهایی
    5
  • معرفی به دوستان
    5
  • مدیریت زمان
    5
جناب آقای قاسمی نژاد
جناب آقای قاسمی نژاد

  • امور مالی و اداری
    5
  • اخلاق حرفه ای
    5
  • کیفیت طرح نهایی
    5
  • معرفی به دوستان
    5
  • مدیریت زمان
    5
جناب مهندس انصاری
جناب مهندس انصاری

با درود و احترام خدمت شما دوستان در مجموعه نما پلان. بنده به میزان ۹۰ درصد از عملکرد مجموعه رضایت دارم فقط چند مورد و آن هم عدم معرفی متریال نما، بود. بقیه موارد عالی

  • امور مالی و اداری
    5
  • اخلاق حرفه ای
    5
  • کیفیت طرح نهایی
    4
  • معرفی به دوستان
    5
  • مدیریت زمان
    5
مجله نماپلان
Namaplan MAG

مجله نماپلان

MAG
مشاهده مطالب     ›
instagram اینستاگرام @Namaplan
NamaPlan